Eladó lakás Miskolc 19 500 000 Ft

Leírás

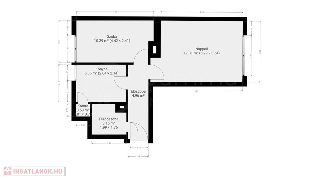
Miskolcon a Belváros közelében a Szent István utcában, 4 emeletes épület magas fölszintjén, eladó, gázkonvektoros, 42 m² - es, 2 szobás, felújítandó lakás!
A lakás zárt belső udvarról közelíthető meg, ahova az autóval be lehet állni

Helyiség lista:
- Előszoba,
- 2 db szoba,
- Konyha,
- Fürdőszoba, WC.,
- Kamra
- Saját pince

Műszaki leírás:
A szoba padlózata hagyományos fa parkettával burkolt.
Falak festettek, fürdőszobában és konyhában részben csempézett.
A fűtés gázkonvektor.

Közlekedés:
BOSCH 5 perc (3,7 km)
Déli ipari park 10 perc (7 km)
Autópálya 8 perc (5 km)
Tömegközlekedés- belváros 1-2 perc séta távolságra megtalálható.
Parkolás közterületen megoldott!

Környezet:
A lépcsőház, tiszta, rendezett környezet.

Lakás részletei

Ár: 19 500 000 Ft
Méret: 42 négyzetméter
Azonosító: 11610919
Irodai azonosító: 126054
Cím: Miskolc
Emelet: Félemelet
Építőanyag: Kérdezzen rá a hirdetőtől »
Fűtés jellege: Cirkó
Ingatlan állapota: Felújítandó
Egész szobák: 2

Egyéb jellemzők

  • Erkély