Az értékesítő:
Takács Alán
+36 20 447 4101

Eladó családi ház Vizsoly, 29 500 000 Ft, 140 négyzetméter

29 500 000 Ft
családi ház, 140 négyzetméter
Egész szobák:
4
Ingatlan állapota:
Átlagos
Azonosító:
11602295
Értékesítés típusa:
eladó
Ingatlan típusa:
családi ház
Jelleg:
Családi ház
Település:
Vizsoly
Alapterület:
140
Telekterület:
908
Ár:
29 500 000 Ft
Fűtés jellege:
Cirkó
Terasz:
Nincs
Erkély:
Van
Telekterület típusa:
négyzetméter
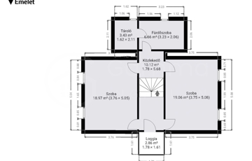
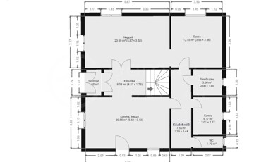
Vizsoly, csendes mellékutcájában, 90-es években, szilikátból és téglából épült, földszint +emelet kialakítású, 4 szobás, 140 m²-es családi ház, 908 m²-es telekkel eladó! Helyiséglista: Földszint - Nappali - Hálószoba - Étkezős konyha - Fürdőszoba - WC. - Kamra - Közlekedő - Előszoba - Szélfogó Emelet - 2 db szoba - Fürdőszoba - Tároló - Közlekedő - Loggia Műszaki leírás: A felépítmény beton sáv alapra, tégla és szilikát felhasználásával épült a 90-es években. Vízszintes teherhordó előre gyártott vasbeton gerendás. Tető szerkezet fa, síkpala héjalással. A teljes alapterület alatt pince található. Fűtése vegyes tüzelésű néhány hónapos kazán, emellett gázkazánhoz ki van építve a rendszer, hőleadók radiátorok. Meleg vizet villanybojler állítja elő. Homlokzat 5 cm-es hőszigeteléssel van ellátva nemes vakolattal. Környezet: Csendes, rendezett mellékutca.
https://ingatlanok.hu/elado/haz/vizsoly/30-millio-ft;140-negyzetmeter;4-szoba;cirko-futes/11602295